MOROCCAN PRIMARY BATH, S. ORANGE

2022 ASID NJ GOLD AWARD For Design Excellence, LARGE BATHROOM

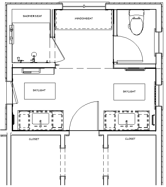
PRIMARY BATH PROBLEM: Leaking dark shower, unwanted whirlpool tub, dated style, dim lighting, colliding bath and closet doors.
PRIMARY BATH SOLUTION: The existing layout was improved by removing the tub, enclosing the enlarged shower with glass, removing closet doors and replacing the pair of bath louvered doors with a solid wood door for privacy. The tile, plumbing and vanities got a major upgrade with fresh colors & style.
SQUARE FEET: 143

 

before & after plans

before

after

Mary Williams